メンバー登録
  1. TOP
  2. 開業物件情報
  3. 物件詳細

物件検索

Search

【仮称】川口元郷メディカルセンター

物件No
000662
物件種別
マンション併設
募集科目
内科 小児科 整形外科 眼科 皮膚科 耳鼻科 脳神経外科 婦人科 泌尿器科 心療内科 その他
詳細条件
駅近く,住宅地
住所
埼玉県川口市元郷1-2-19
アクセス
埼玉高速鉄道 川口元郷駅から
徒歩1分
(乗降客数18,700人/日)

・駅から徒歩1分の立地で視認性良好
・周辺に医療機関が少なく医療需要が高い
・木目調で温かみのある外観

契約形態
定期借家契約
竣工時期
2026年3月頃竣工予定
商圏情報
【夜間人口】2020年国勢調査 1次:16,783人 2次:59,997人 3次:105,967人
その他情報
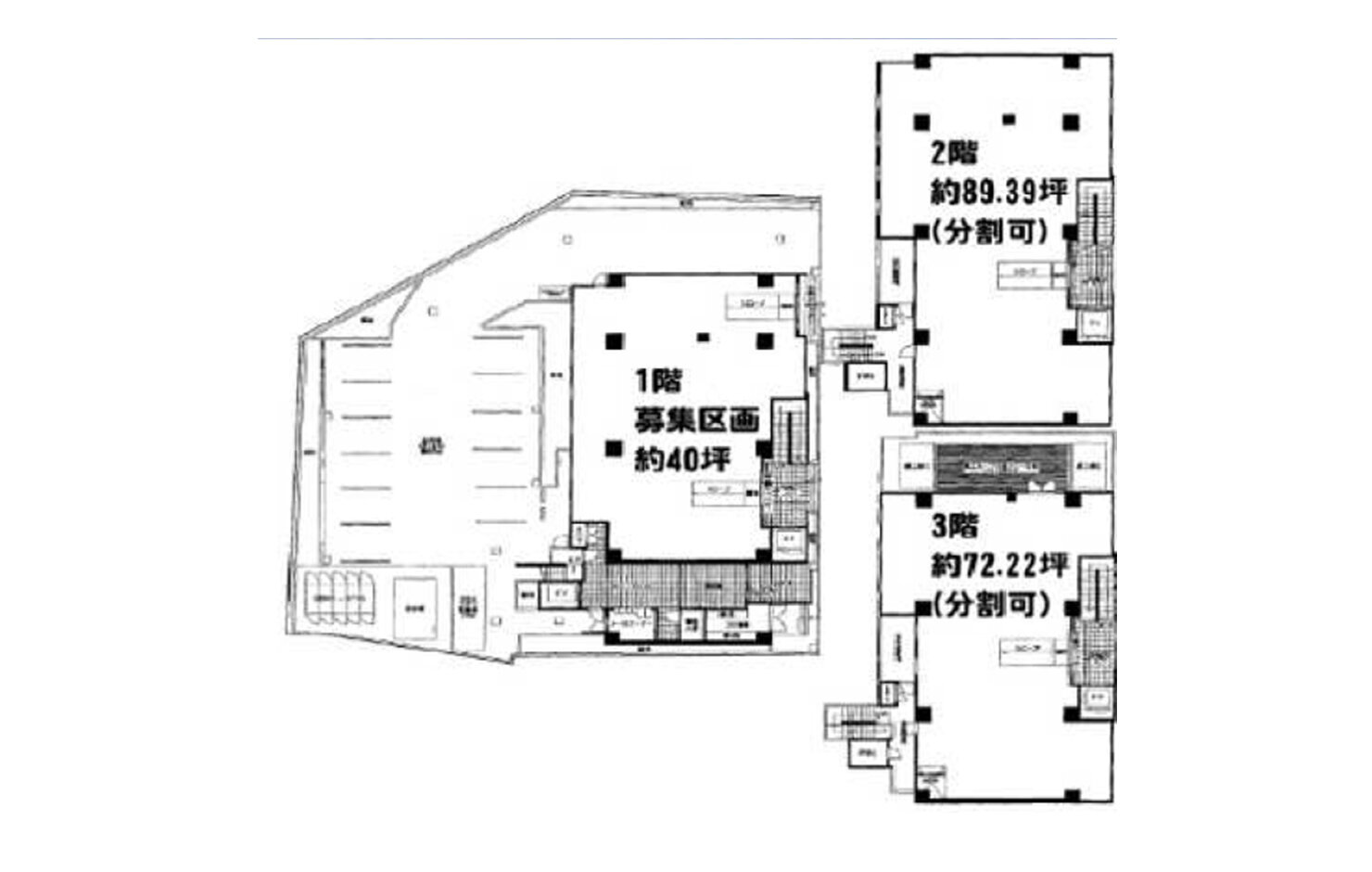
区画割相談可、4~8階は賃貸マンション予定
募集区画 面積 賃料
1階 調剤薬局開局予定
1階 約40坪 応相談
2階 約89.39坪(分割可) 応相談
3階 約72.22坪(分割可) 応相談

駅徒歩1分の視認性良好な新築物件

メディットメンバー登録

メンバー限定で非公開の物件情報や
M&A情報、
新規開業・分院展開のノウハウ、
開業に必要な
知識とネットワークを
提供いたします。

無料メンバー登録をする

開業相談・お問い合わせ

新規開業や承継に関するご質問・
ご相談があれば、
お気軽にお問い合わせください。
開業に最適な物件調査・
事業計画の提案からサポートします。

無料開業相談をする