メンバー登録
  1. TOP
  2. 開業物件情報
  3. 物件詳細

物件検索

Search

大田区池上6丁目医療モール計画

物件No
000622
物件種別
医療モール
募集科目
内科 小児科 整形外科 眼科 皮膚科 耳鼻科 脳神経外科 婦人科 泌尿器科 心療内科 その他
詳細条件
駅近く,住宅地
住所
東京都大田区池上6丁目
アクセス
京急池上線「池上」駅 徒歩1分

・駅徒歩1分の駅チカ物件!
・内装自由度の高い新築医療ビル計画!
・池上駅前通り商店街沿いで集患・視認効果抜群!

構造
地上9階建て
竣工
2027年6月予定
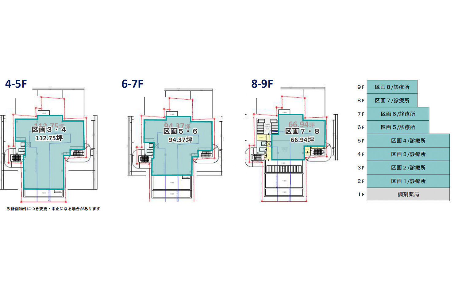
募集区画
2~9階(区画分割可)
区画1/101.77坪、区画2/122.23坪、区画3・4/112.75坪、区画5・6/94.37坪、区画7・8/66.94坪
賃料・共益費
賃料:25,000円前後/坪 共益費:※応相談(別途消費税)
契約形態
定期建物賃貸借契約 ※契約年数応相談
内装
スケルトン渡し(予定)
敷金・償却
※(調整中)
その他
礼金※応相談 エレベーター2基
※計画物件につき変更・中止になる場合があります
階数・区画 面積
1F 調剤薬局
2F 区画1 101.77坪
3F 区画2 122.23坪
4F 区画3 112.75坪
5F 区画4 112.75坪
6F 区画5 94.37坪
7F 区画6 94.37坪
8F 区画7 66.94坪
9F 区画8 66.94坪

メディットメンバー登録

メンバー限定で非公開の物件情報や
M&A情報、
新規開業・分院展開のノウハウ、
開業に必要な
知識とネットワークを
提供いたします。

無料メンバー登録をする

開業相談・お問い合わせ

新規開業や承継に関するご質問・
ご相談があれば、
お気軽にお問い合わせください。
開業に最適な物件調査・
事業計画の提案からサポートします。

無料開業相談をする