メンバー登録
  1. TOP
  2. 開業物件情報
  3. 物件詳細

物件検索

Search

両国PJ(墨田区亀沢1丁目計画)

物件No
000624
物件種別
医療モール
募集科目
小児科 整形外科 眼科 皮膚科 脳神経外科 婦人科 泌尿器科 心療内科 その他
詳細条件
駅近く,住宅地
住所
東京都墨田区亀沢1-23
アクセス
都営大江戸線 両国駅 徒歩1分
JR総武線 両国駅 徒歩9分
予定賃料
23,500円/坪 (税別) 予定
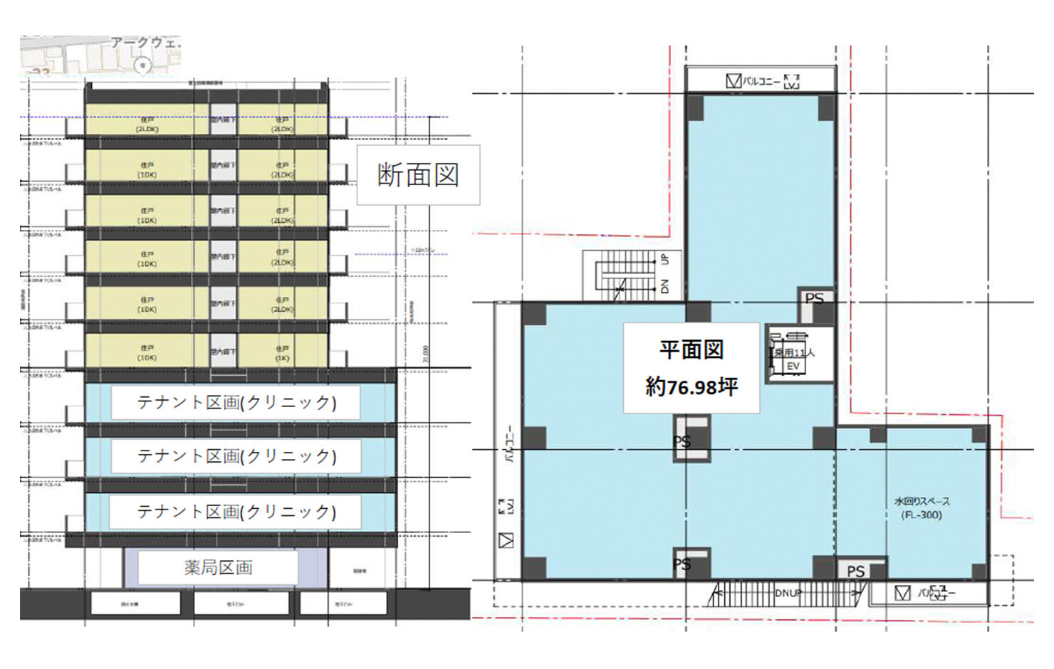
概要
都営大江戸線 両国駅 A2番出口から徒歩1分の10階建て新築計画です
1階~4階がテナント区画、5階~10階は住居の予定
希少な駅前物件、視認性も良好です
ワンフロア約77坪、分割相談可能です
2027年夏に竣工予定、2027年秋~2028年春開業可能案件です。

1km診療圏データ
内科(38.1人/日)、小児科(15.8人/日)、精神科(22.7人/日)、
整形外科(67.8人/日)、皮膚科(34.7人/日)、泌尿器科(20.9人)、
産婦人科(44.3人/日)、耳鼻咽喉科(47.1人/日)、眼科(39.1人/日)

※常住人口ベース
※募集状況により、変更・中止の可能性が御座います

メディットメンバー登録

メンバー限定で非公開の物件情報や
M&A情報、
新規開業・分院展開のノウハウ、
開業に必要な
知識とネットワークを
提供いたします。

無料メンバー登録をする

開業相談・お問い合わせ

新規開業や承継に関するご質問・
ご相談があれば、
お気軽にお問い合わせください。
開業に最適な物件調査・
事業計画の提案からサポートします。

無料開業相談をする