メンバー登録
  1. TOP
  2. 開業物件情報
  3. 物件詳細

物件検索

Search

実籾駅前計画

物件No
000647
物件種別
医療モール
募集科目
内科 小児科 整形外科 眼科 皮膚科 耳鼻科 脳神経外科 婦人科 泌尿器科 心療内科 その他
詳細条件
駅近く
住所
千葉県習志野市実籾2丁目1-枝番未定
アクセス
京成電鉄本線 実籾駅 徒歩1分
予定賃料
2階 12,000円/坪(税別・共益費込)予定
概要
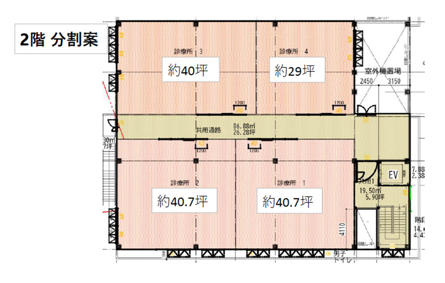
1階に調剤薬局と物販店入居予定
2階の約40坪 3区画と約29坪の計4区画で全科目募集
2027年上旬~中旬竣工予定
駅前のロータリー沿いで視認性抜群です
駐車場16台と駐輪場設置予定

1.5km診療圏データ
内科(53人/日)、小児科(23.3人/日)、精神科(23.1人/日)、整形外科(140.5人/日)、 脳神経外科(16.6人/日)、皮膚科(32.4人/日)、泌尿器科(23.5人/日)、 産婦人科(27.8人/日)、耳鼻咽喉科(49.8人/日)、眼科(49.4人/日)
※常住人口ベース
※募集状況により、変更・中止の可能性が御座います

京成本線 実籾駅から徒歩1分の新築医療モール計画

メディットメンバー登録

メンバー限定で非公開の物件情報や
M&A情報、
新規開業・分院展開のノウハウ、
開業に必要な
知識とネットワークを
提供いたします。

無料メンバー登録をする

開業相談・お問い合わせ

新規開業や承継に関するご質問・
ご相談があれば、
お気軽にお問い合わせください。
開業に最適な物件調査・
事業計画の提案からサポートします。

無料開業相談をする